Описание
Эта современная квартира создана для тех, кто ценит комфорт и практичность в двух шагах от прекрасного залива о. Самуи. Панорамные окна наполняют пространство светом, а компактная планировка с зоной отдыха, кухней со встроенными системами хранения делает жильё удобным как для жизни, так и для инвестиций.
Купить апартаменты в этом проекте — значит получить доступ к уникальной инфраструктуре с каскадным бассейном, фитнес-залом, спа-зоной и лаунж-пространствами. Здесь всё продумано для отдыха и аренды: низкие расходы на содержание, высокий спрос со стороны туристов и экспатов, а также профессиональное управление арендой.
Приобрести недвижимость на Самуи в этой локации особенно выгодно: всего 5 минут до Fisherman’s Village, рядом пляж Мае Нам, клуб Santiburi Samui, пирсы Lomprayah и Nathon с катамаранами и паромами, а до аэропорта Самуи — всего 10 минут. Это один из последних участков у моря, доступных под застройку, что делает покупку ещё более ценной для долгосрочных инвесторов.
- Квартира
Тип недвижимости
- 1
Спальня
- 1
Ванная
- 42
м²
- 2027
Год постройки
Property Documents
Описание недвижимости
-
ИД объекта SA0002
-
Цена ฿4,919,907
-
Площадь 42 м²
-
Спальня 1
-
Ванная 1
-
Комнаты 2
-
Год постройки 2027
-
Статус Продажа
-
Тип недвижимости Квартира
Energy Ratings
Основные удобства
Видео
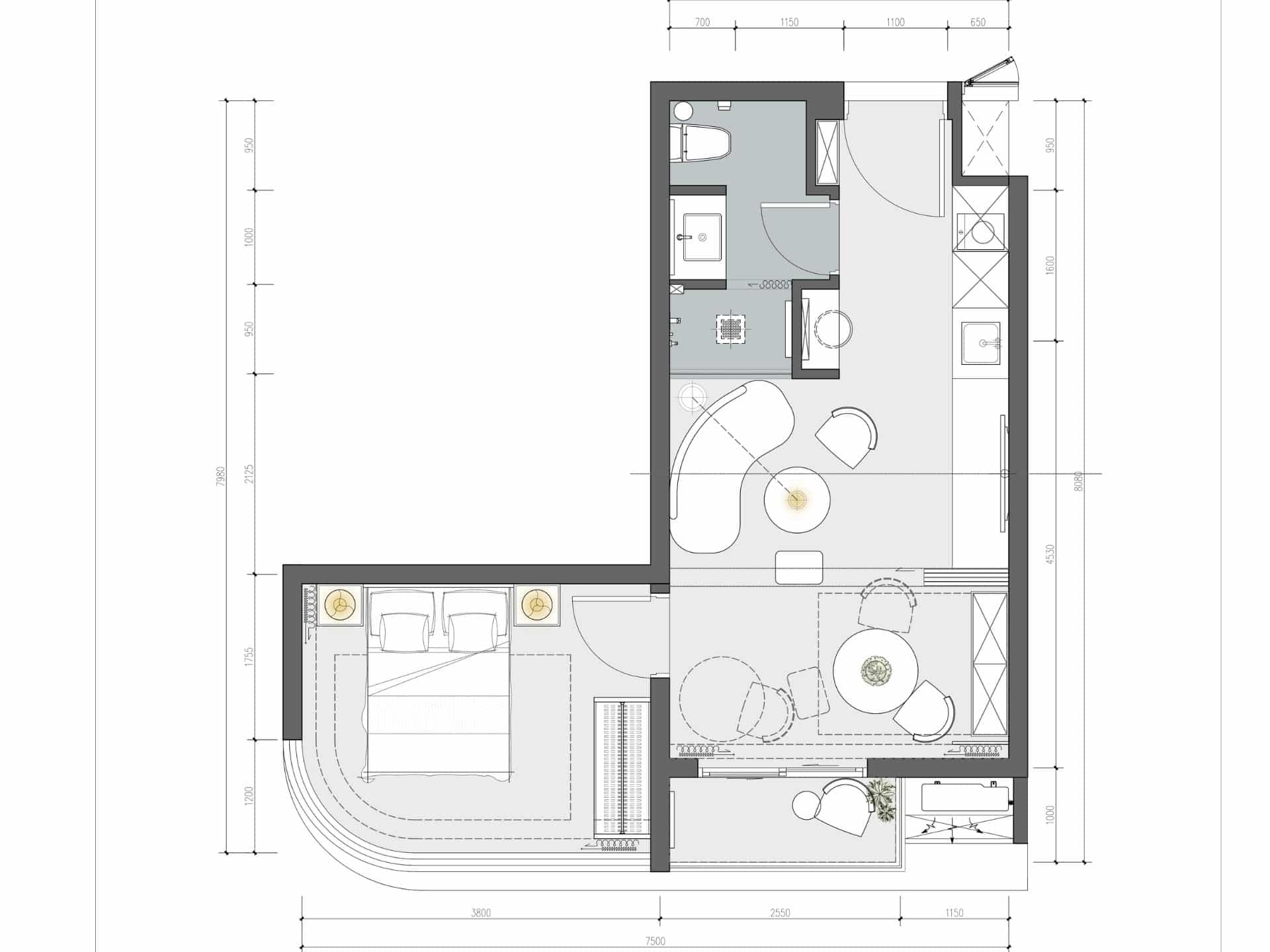
Планировка
- Size: 42
- 1
- 1
- Цена: ฿4,919,907

Описание:
Квартира спроектирована с максимальной функциональностью и комфортом. При входе расположена компактная кухня с удобной рабочей зоной и местами хранения, плавно переходящая в зону отдыха. Большие панорамные окна наполняют помещение естественным светом и открывают вид на бассейн и внутренний двор.
Estimate Payments
-
Down Payment
-
Loan Amount
-
Monthly Mortgage Payment
-
Property Tax
-
Home Insurance
-
PMI
-
Monthly HOA Fees
Schedule a visit
3D Тур
Walkscore
Рейтинг ближайших мест
Получите квалифицированную помощь
Современный таунхаус в районе Чонг Мон, Самуи — комфорт и доходность
- ฿9,500,000
- Кровати: 3
- Ванные: 2
- 192 м²
Роскошные апартаменты с 1 спальней в самом сердце Банг Тао
- ฿5,603,000
- Кровать: 1
- Ванна: 1
- 52 м²
Современная вилла с бассейном и панорамными видами на Самуи
- ฿5,900,000
- Кровати: 2
- Ванные: 2
- 142 м²
Премиум-вилла с 3 спальнями рядом с пляжем на востоке о.Самуи
- ฿7,500,000
- Кровати: 3
- Ванные: 4
- 276 м²